Loreto Casa..

call 0331200671 location_on via IV Novembre ,34 Cassano Magnago (Lombardia) mail info@loretocasa.it

Villa a Cairate

location_on Via G. Mameli, 1 - Cairate (Lombardia)

€ 420.000


Riferimento: 585-4

Dettagli

Tipologia: Villa
Tipo contratto:
Vendita
Città: Cairate
Indirizzo:
Via G. Mameli, 1 - Cairate (Lombardia)
Locali: 4
Bagni: 2
Camere: 3
Superficie: 175
Anno: 2026
Classe Energetica: 24

Ambienti

check Balconi
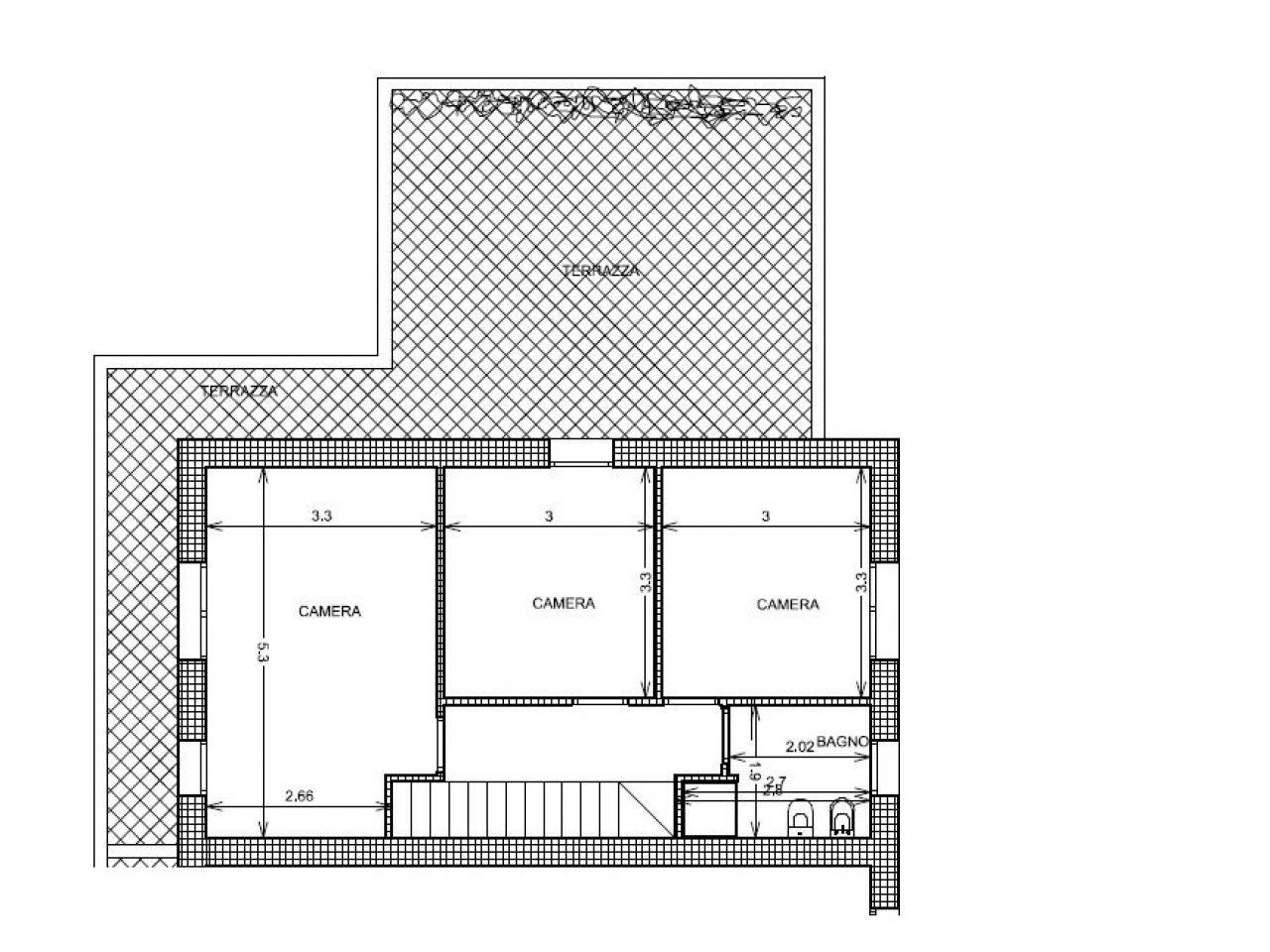
check Terrazzo - Mq: 28
check Giardino privato
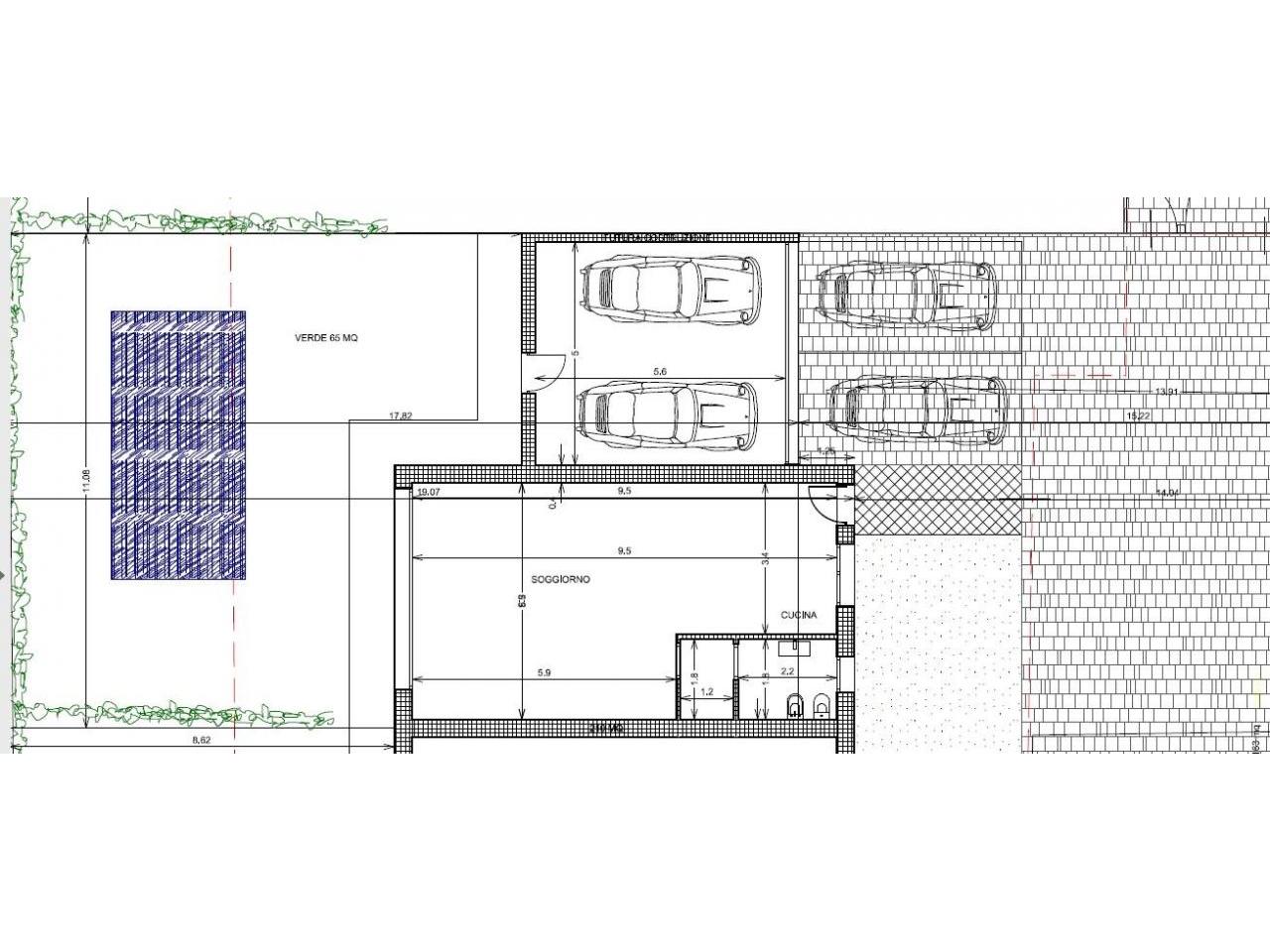
check Box - Mq: 30

Caratteristiche

check Doccia
check Sanitari sospesi
check Antenna TV autonoma
check Impianto elettrico a norma

Descrizione

NUOVA COSTRUZIONE: VILLA CON GIARDINO E BOX disposta su due livelli

Scopri la bellezza di questa villa in costruzione, che si distingue per spazi luminosi e un design moderno, studiato per accogliere la quotidianità di una famiglia con stile e funzionalità.

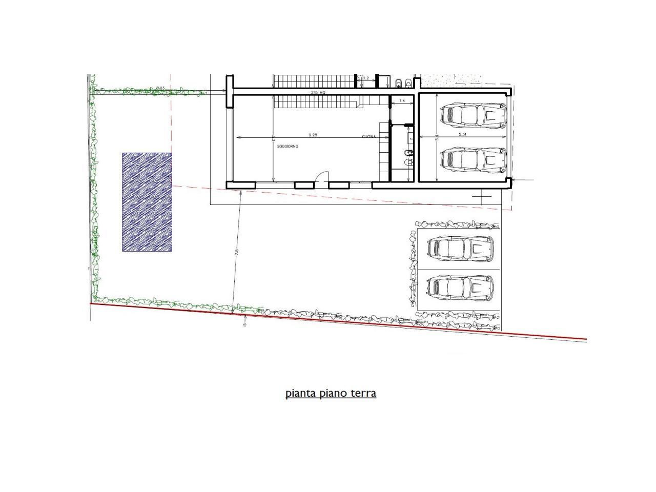
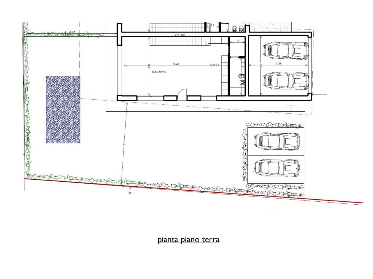
Al PIANO TERRA un ampio living open space unisce soggiorno e cucina a vista, creando un ambiente conviviale e raffinato. Completa il piano un comodo antibagno con servizio.

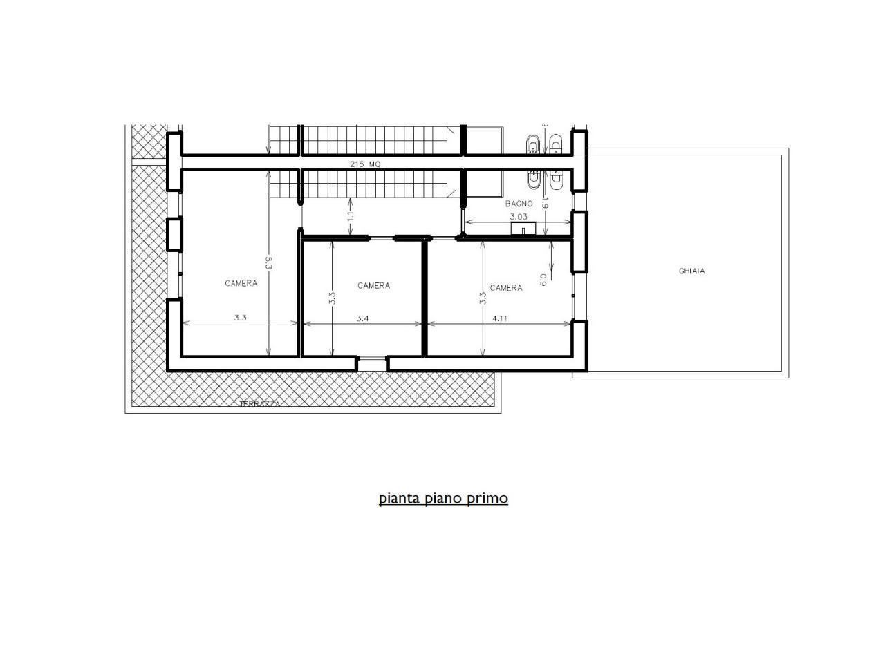
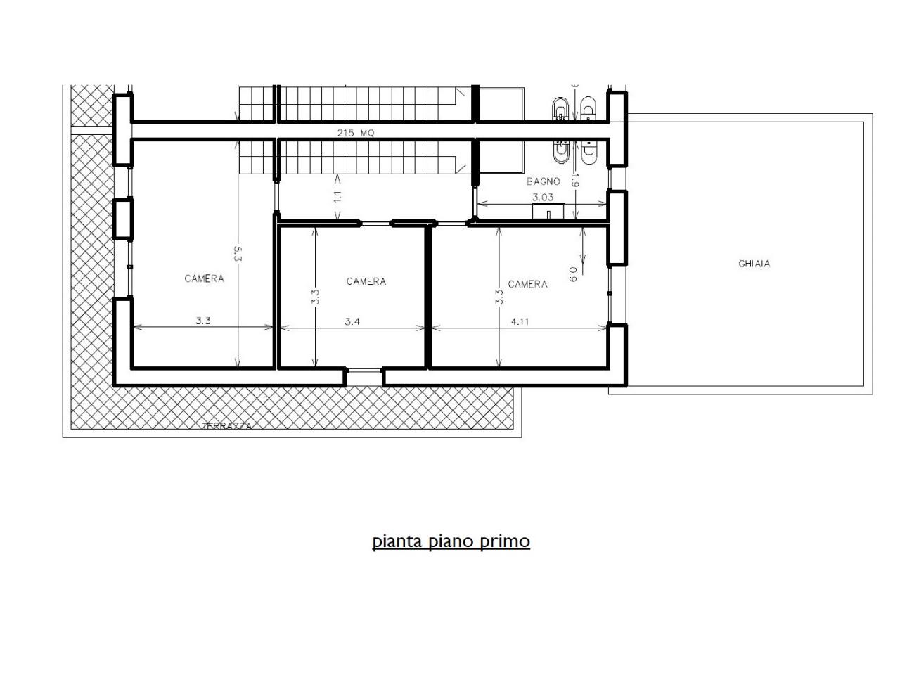
Al PIANO PRIMO si sviluppa la zona notte, composta da tre camere da letto, bagno principale, balcone perimetrale e un AMPIO TERRAZZO, perfetto per momenti di relax all’aperto.

A completare la soluzione, uno spazioso giardino e un box doppio.

La villa è realizzata secondo i più alti standard costruttivi, con classe energetica A4, pannelli fotovoltaici, riscaldamento a pavimento e tapparelle elettrificate.

Ogni dettaglio è pensato per garantire benessere, efficienza e sostenibilità. Inoltre, è possibile personalizzare le finiture interne, scegliendo materiali e tonalità in base ai propri gusti, per rendere ogni ambiente davvero unico.

Una dimora moderna, accogliente e pronta a rispecchiare la vostra idea di casa.

Contattateci per maggiori informazioni e per scoprire da vicino questa straordinaria opportunità!

Localizzazione

Planimetrie

Recensioni

Scrivi la tua recensione

Voto:

STAI CERCANDO DI VENDERE CASA?

Affidaci l'incarico e ci penseremo noi.

call

CHIAMACI ORA

0331200671

L'immobile è stato aggiunto ai preferiti.
arrow_upward