Loreto Casa..

call 0331200671 location_on via IV Novembre ,34 Cassano Magnago (Lombardia) mail info@loretocasa.it

Rustico a Cassano Magnago

location_on Via Sant Anna, 11 - Cassano Magnago (Lombardia)

€ 380.000


Riferimento: 575

Dettagli

Tipologia: Rustico
Tipo contratto:
Vendita
Città: Cassano Magnago
Indirizzo:
Via Sant Anna, 11 - Cassano Magnago (Lombardia)
Locali: 8
Bagni: 1
Camere: -
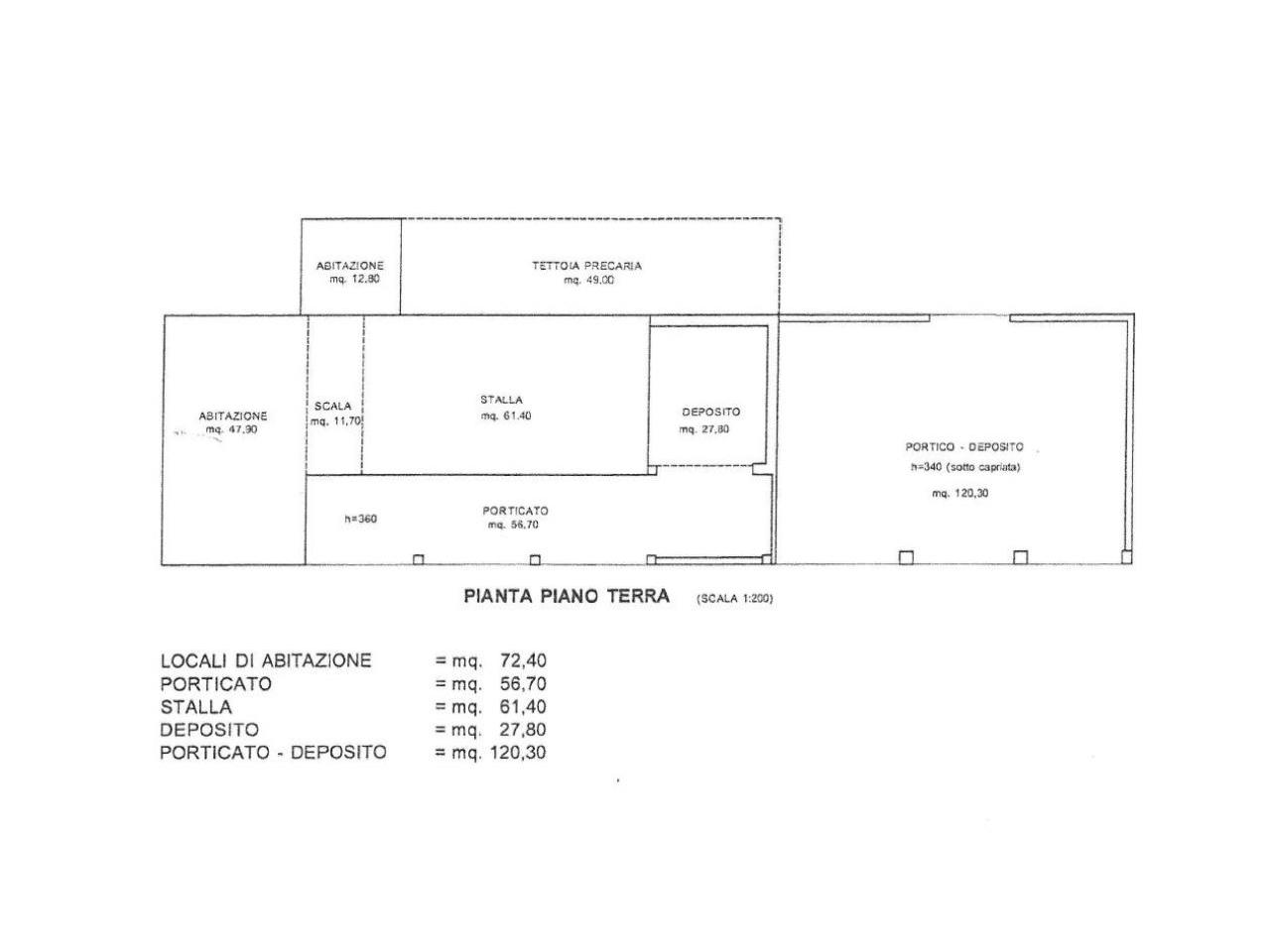
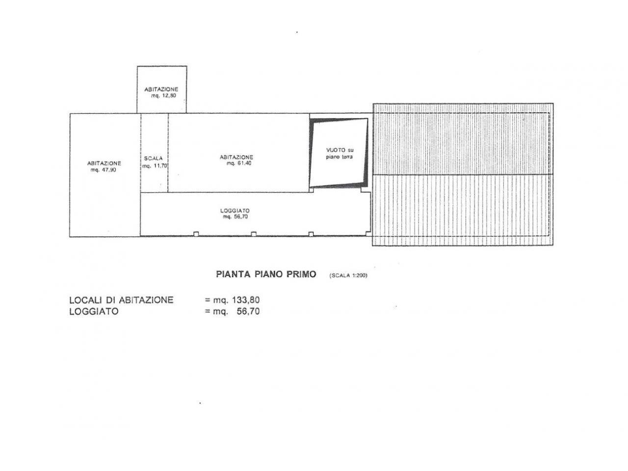
Superficie: 416
Anno: 1800

Ambienti

check Giardino privato - Mq: 5000
check Terreno - Mq: 5000

Descrizione

VENDESI INTERA PRORPIETA' IMMOBILIARE COSTITUITA DA CASCINALE CON TERRENO

Sogni una vita lontano dal caos, circondato dal verde, con spazio per costruire il tuo rifugio perfetto o dare vita a un progetto agricolo e residenziale su misura? Questa è l’opportunità che stavi aspettando.

In vendita prestigiosa proprietà immersa nella tranquillità della campagna, ma comodamente vicina a tutti i servizi cittadini. Una combinazione rara di natura, spazio e potenzialità edificatoria che rende questo immobile un investimento ideale per privati, agricoltori, sviluppatori o amanti della vita slow.

La proprietà è così composta:

- Lotto A: CASEGGIATO RURALE DA RISTRUTTURARE, con giardino privato perimetrale. Un’opportunità imperdibile per chi desidera ristrutturare secondo il proprio gusto e vivere in una casa unica, dal sapore antico, immersa nel verde (POSSIBILITA' DI DEMOLIRE E RICOSTRUIRE MQ. 750 CIRCA).

- Lotto B: TERRENO EDIFICABILE di circa 1.380 mq, perfetto per la realizzazione di una nuova abitazione o struttura ricettiva. A completare, 3.620 mq di TERRENO AGRICOLO, ideali per coltivazioni, orti, frutteti o allevamento.

Perché scegliere questa proprietà?

- Posizione strategica: immersa nella natura, ma vicina ai servizi

- Ideale per abitazione, agriturismo o attività agricola

- Ampie metrature e grande potenziale di personalizzazione

- Opportunità di investimento con ritorni nel tempo

Contattaci oggi stesso per maggiori informazioni o per prenotare una visita.

Localizzazione

Planimetrie

Video

Recensioni

Scrivi la tua recensione

Voto:

STAI CERCANDO DI VENDERE CASA?

Affidaci l'incarico e ci penseremo noi.

call

CHIAMACI ORA

0331200671

L'immobile è stato aggiunto ai preferiti.
arrow_upward