Loreto Casa..

call 0331200671 location_on via IV Novembre ,34 Cassano Magnago (Lombardia) mail info@loretocasa.it

Capannone a Somma Lombardo

location_on Via C. Garzonio, 12 - Somma Lombardo (Lombardia)

€ 290.000


Riferimento: 590

Dettagli

Tipologia: Capannone
Tipo contratto:
Vendita
Città: Somma Lombardo
Indirizzo:
Via C. Garzonio, 12 - Somma Lombardo (Lombardia)
Locali: 4
Bagni: 7
Camere: -
Superficie: 730
Anno: 1960

Caratteristiche

check Ripostiglio

Descrizione

CAPANNONE INDUSTRIALE CON UFFICI a Somma Lombardo

Cerchi una sede funzionale, facilmente raggiungibile e pronta ad accogliere la crescita della tua azienda?

A Somma Lombardo, in posizione strategica e perfettamente collegata con le principali vie di comunicazione, ti attende un CAPANNONE INDUSTRIALE e di ampia metratura pensato per ottimizzare ogni fase del lavoro.

? Posizione ideale per la logistica e la produttività:

• A soli 12 minuti da Milano Malpensa

• 8 minuti dall’ingresso autostradale di Besnate

• 10 minuti da quello di Vergiate

• 2 minuti dalla stazione ferroviaria di Somma Lombardo

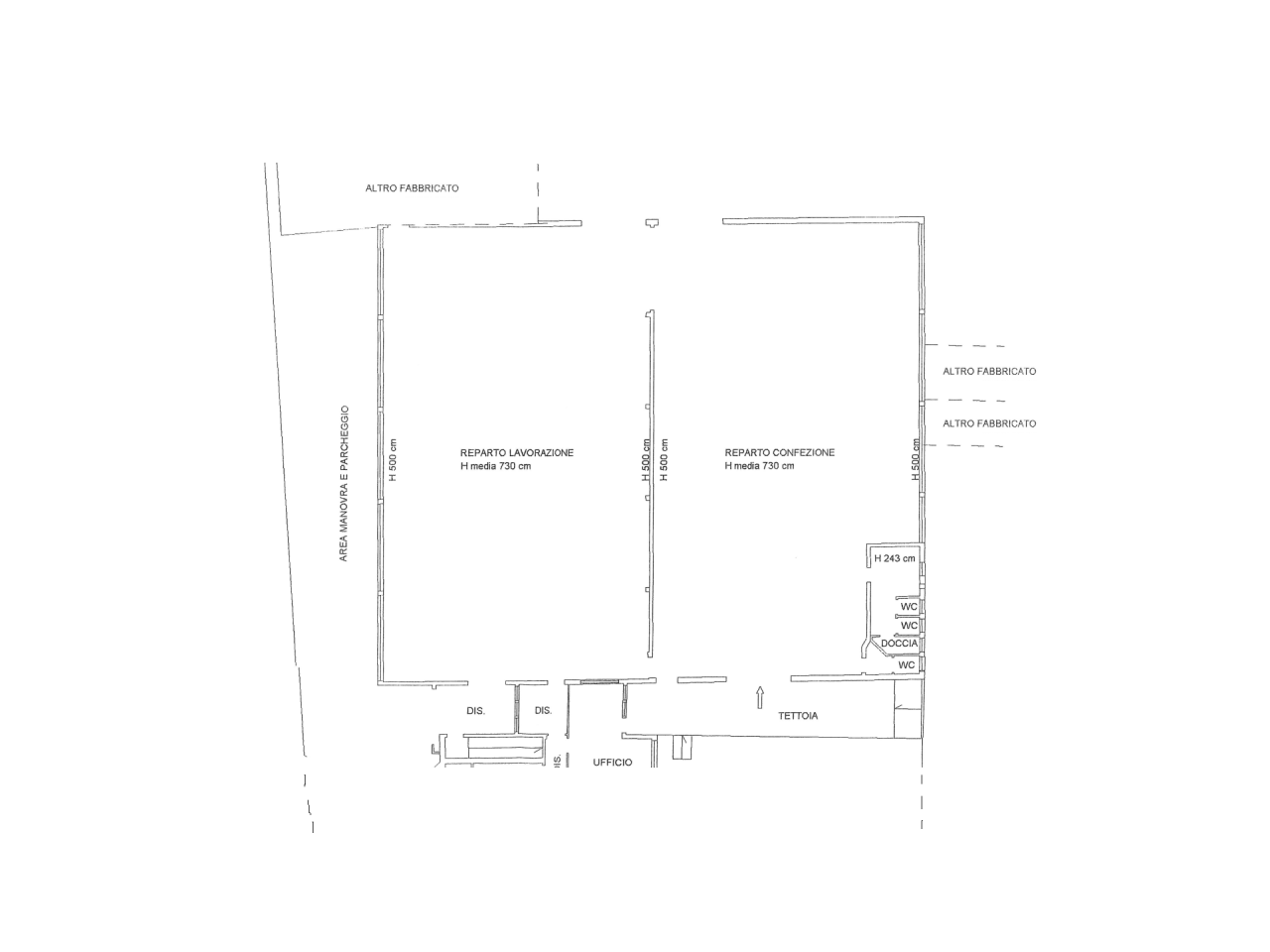
Con i suoi 730 m² di area produttiva suddivisa in due ambienti adiacenti, la struttura consente l’installazione di macchinari di grandi dimensioni e si adatta a molteplici attività industriali o artigianali.

Gli ambienti sono dotati di un grande SPOGLIATOIO per gli operatori, 3 servizi igienici e area docce, garantendo comfort e funzionalità per il personale.

Al piano terra, un ufficio di rappresentanza di circa 200 m² offre tutto lo spazio necessario per attività amministrative e direzionali, con locale ripostiglio e zona archivio ideale per documentazione e pratiche.

Al piano interrato, ulteriori spogliatoi con 4 bagni, locale caldaia e due ripostigli completano l’area tecnica.

Davanti all’edificio si apre un ampio cortile pavimentato di circa 300 m², perfetto per PARCHEGGIO, CARICO/SCARICO merci e MANOVRA di mezzi pesanti.

Un capannone pensato per far crescere la tua impresa. Contattaci per informazioni o per fissare una visita privata.

Localizzazione

Planimetrie

Recensioni

Scrivi la tua recensione

Voto:

STAI CERCANDO DI VENDERE CASA?

Affidaci l'incarico e ci penseremo noi.

call

CHIAMACI ORA

0331200671

L'immobile è stato aggiunto ai preferiti.
arrow_upward